今回ご紹介させて頂きます【プレジオ梅田 】は、大阪の中心エリアに位置し、3駅が利用できる高い利便性が魅力の都市型レジデンスです。最寄り駅から徒歩圏内で、地下鉄・阪急・JRなど主要路線へスムーズにアクセス可能。通勤・通学だけでなく、ショッピングやグルメ、エンターテインメントなど、都心ならではの多彩な生活施設が身近に揃います。
外観は洗練されたスタイリッシュなデザインで、共用部にはオートロックや防犯カメラを備え、都心での暮らしを安心して送れるセキュリティ環境を確保。室内は高品質な設備を採用し、収納力のある間取りや使い勝手のよいキッチンなど、快適性を追求した空間設計が特徴です。
都会の利便性と住み心地を兼ね備えたプレジオ梅田は、シングルからディンクスまで幅広いライフスタイルに対応する理想的な住まいです。ご自身の生活拠点としてはもちろん、資産性を重視した方にもおすすめできる物件です。
「プレジオ梅田 」について
「プレジオ梅田」の物件概要

| 所在地 | 大阪府大阪市北区中崎西 |
|---|---|
| 最寄駅 | 大阪メトロ谷町線 /中崎町駅 徒歩5分 |
| 築年数 | 2025年9月 |
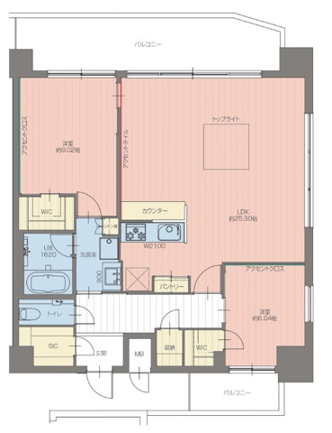
| 間取り | 2LDK |
| 構造 | 鉄筋コンクリート |
「プレジオ梅田」の周辺施設
- 大阪市立豊崎小学校 636m
- 大阪市豊崎中学校 1320m
- ライフ本庄店 1102m
- イオンフードスタイル中崎町店 197m
- 三菱東京UFJ銀行 阪急梅田北支店 923m
- LINKS UMEDAヨドバシ梅田タワー 1018m
- 梅田ロフト 817m
\ 地域の特性を知りたい方へ /
「プレジオ梅田 」の室内詳細
間取り

エレベーター / 宅配ボックス / 敷地内ごみ置き場 / バルコニー / フローリング / 全居室フローリング / エアコン / 照明付き / 人感照明センサー / BS・CS / BS / CS / CATV / / TVインターホン / 耐震構造 / 免震構造 / バリアフリー / 分譲賃貸 / 2面採光 / 全居室洋室 / 駐輪場 / バイク置場 / システムキッチン / カウンターキッチン / 食器洗乾燥機 / 給湯 / バストイレ別 / 脱衣所 / オートバス / 高温差湯式 / 浴室乾燥機 / ミストサウナ / シャワー / 追い焚き / 温水洗浄便座 / 洗面所独立 / 洗面所にドア / 洗面台 / 洗面化粧台 / 洗髪洗面化粧台 / 三面鏡付洗面化粧台 / シャワー付洗面台 / シャワールーム / 暖房便座 / 浴槽 / 冷房 / 24時間換気システム / クロゼット / ウォークインクロゼット / シューズボックス / 玄関収納 / 押入 / トランクルーム / オートロック / ダブルロックキー / ディンプルキー / 防犯カメラ / 24時間緊急通報システム / 24時間有人管理 / モニター付きオートロック / フロントサービス / ゴミ出し24時間OK / オンライン内見可 / オンライン相談可 / 2駅利用可 / 2沿線利用可 / 3駅以上利用可 / 3沿線以上利用可 / 駅徒歩5分以内 / 即入居可 / ペット相談 / 2人入居相談 / IT重説 対応物件 / LGBTフレンドリー
※設備をクリック頂くと設備で条件を絞ることが可能です
LDK/洋室

「プレジオ梅田」のリビングは大きな窓から都市の景色が広がる、開放感あふれるLDK25帖の空間。ダークトーンのフローリングが落ち着いた印象を与え、天井には間接照明とトップライトを配置し、昼夜で異なる表情を楽しめる。白を基調としたアイランドキッチンは動線が良く、背面のアクセントウォールが空間を上質に演出。リビングとダイニングが一体となり、家族団らんや来客時にもゆったり過ごせる、都会的で洗練された住空間が広がっている。
キッチン

「プレジオ梅田」のキッチンは、白を基調とした清潔感のあるキッチン空間。シンクと作業台が一体となったカウンターは、調理や片付けがしやすい実用的な設計。ガスコンロとスタイリッシュなレンジフードを備え、効率よく料理ができる。手元からリビング全体を見渡せる配置のため、開放感があり家族との会話も楽しめる。床のダークカラーが空間を引き締め、奥に見えるアクセントウォールと調和した、機能性とデザイン性を兼ね備えたキッチンである。
バスルーム

「プレジオ梅田」のお風呂はダークカラーのタイル調パネルが印象的な、落ち着きと高級感を備えたバスルーム。壁面全体に施されたデザインが空間に奥行きを与え、間接照明が上質な雰囲気を演出している。液晶テレビも設置されておりゆったりとした浴槽は足を伸ばしてくつろげるサイズ感で、日々の疲れを癒すのに最適。シャワーやカウンター、収納も使いやすく配置され、機能性とデザイン性を兼ね備えた、ホテルライクな浴室空間となっている。
脱衣所

「プレジオ梅田」の洗面台は、正面には三面鏡タイプの大きなミラーキャビネットが設置され、収納力と身支度のしやすさを兼ね備えている。洗面台は石目調のカウンターに埋め込み式の白い洗面ボウルが組み合わされ、清潔感と高級感を演出している。下部は木目調の収納となっており、生活用品をすっきり収められる。床は落ち着いた色味で、奥には玄関ドアや廊下が続き、住空間全体との統一感が感じられる洗練された洗面空間である。
トイレ

「プレジオ梅田」のトイレは、細長い空間に配置されたスタイリッシュなトイレを写している。正面奥には白く丸みのあるタンクレストイレが設置され、その背後の壁には落ち着いた色合いのダマスク柄アクセントクロスがあしらわれている。床はダークトーンのタイル調で、空間全体を引き締めている。右側には木目調の収納付きカウンターがあり、上部には四角い洗面ボウルとシンプルな水栓が設置されている。白い壁と木目、柄壁紙の対比が上品で、機能性とデザイン性を兼ね備えたトイレ空間である。
収納

「プレジオ梅田」のウォークインクローゼット内部は、木目調の棚や吊り下げ式ハンガーパイプが壁一面に配置されているのが特徴です。引き出し付き収納も設けられ、床は淡い木目調フローリング、壁は白塗装で統一されています。クローゼット内は奥行きがあり、衣類を掛けるスペースと棚に分けて利用できます。衣類や靴、小物を効率的に整理できる実用的な空間です。
その他の設備
「プレジオ梅田」のその他設備は、都心での暮らしをより快適にするための充実した共用・専有設備が揃っています。エントランスにはオートロックや防犯カメラが設置され、24時間安心できるセキュリティ体制を確保。また、宅配ボックスを完備しているため、不在時でも荷物を受け取ることができ、忙しい方にとって大きな利便性となっています。室内には高速インターネット環境が整い、テレワークや動画視聴も快適。空調設備や照明も省エネ仕様で、日々の暮らしをサポートします。さらに、バルコニーや収納スペースなど、生活動線を意識した細やかな設計もポイント。都会の利便性を享受しながら、安心・快適な住環境を提供する設備が揃い、住まう人のライフスタイルを豊かにしてくれる物件です。
「プレジオ梅田」のおすすめポイント
こんな条件でお探しの方にオススメ
住みたい条件
その他の条件
お部屋探しでお困りの方へ
LAKIA不動産天六店では、大阪市北区・都島区・東淀川区を中心に大阪市内の最新の賃貸情報(マンション・アパート・戸建)をお届けしています。
任せてよかったと納得、安心していただけるお部屋探しのサポートを提供させていただきます。
ご希望のお部屋がホームページに掲載されていない場合でもご安心ください。家主様のご都合でインターネットに掲載できないご希望エリアの物件をご紹介させていただきます。
「賃貸・売買で契約の事がわからない」「遠方で来店ができない」「初期費用を抑えたい」等のお悩みはお気軽にご相談ください。







